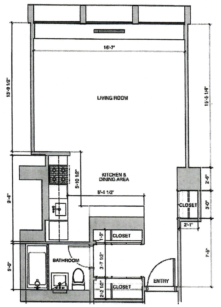
HIGH-FLOOR LIGHT AND BRIGHT ALCOVE STUDIO
Open City Views from Floor-to-Ceiling Windows. Renovated Apartment features Wood Cabinetry, Subway Tile Backsplash, Granite Countertops, Under Mount Sink and Stainless Steel Appliances. Dressing Area. Many Closets. Plank Floors.
Price:
$3,200




Floorplan:
